作者:1396me皇家世界
成都「国贸人居海上蓉屿」116 - 127㎡精美拆修房源!速览楼盘详尽消息、获取最新房价及售楼热线。
成都【国宾九玺】国庆出格优惠专场来袭!121 - 141㎡臻品户型,290万起还带车位,速拨售楼处德律风领会。
成都【湛蓝卡地亚花圃城】售楼处德律风最新总价区间国庆特惠勾当楼盘发卖公示领会项目细致消息_线。
贸易:紧邻铁建广场、中车共享城,取太古里、万象城商圈构成联动,项目本身规划潮玩美食街、米其林餐厅等高端业态。
项目位于成华区二八板块,做为成都七大副核心之一,定位“地方文创商务休闲区”,集聚东郊回忆艺术区、完满世界文创公园等10大文创园区,吸引超600家文创企业,年产值超50亿,构成“文创+贸易”的财产生态。
业态适配:烟道、燃气等硬件预留,适合餐饮、零售等多类型商家,依托项目文旅流量打制“24小时不夜城”。
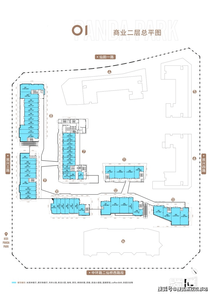
K101广场由成都知德置业开辟,斥资30亿元打制占地87亩、总建建面积27万㎡的“公园城市贸易分析体”。项目定位为“成都CCD地方文创商务休闲区”焦点地标,对标新加坡星耀樟宜取美国亚马逊总部,是中国首个以大熊猫形态玻璃网壳建建为特色的非标贸易体,融合购物、文旅、办公、栖身等多元功能。
户型设想:24-34㎡精奢LOFT,层高4。2米,得房率66-110%,可为套一或套二。
承载着建立成都抱负糊口的,人居怡湖春晓集多沉亮点于一身:既是怡心湖片区规划升级后的首发做品,也是兴城人居湖居糊口3。0系统的代表力做,更坐拥约1100亩公园内独一临湖室第的奇特意位。 该户型以焕变逸趣。
产物类型:LOFT商办(40年产权)取中环万能商铺,一期LOFT总户数2521户,商铺仅199套。
双地铁双TOD:7号线号线(正在建)双轨交汇,二仙桥取八里庄TOD环抱,联动中环、二环、三环快速网。
成都【树高北湖丽璟】9月房价动态及时更新!拨打售楼处德律风获取户型图及项目引见,享专属优惠礼遇!
成都【越秀望悦】楼盘最新成交价钱沉磅公示!速拨售楼处德律风,深切领会多样户型、超值优惠勾当,还能预定实地看房啦。
当前板块已构成金周、侯家桥、梓潼宫三大TOD协同成长系统:金周TOD定位高端生态活力住区取一坐式邻里办事核心,供给大型贸易及公共办事配套;侯家桥TOD以科技办事+聪慧交通为焦点,建立人工智能产?。
交付尺度:LOFT分清水取精拆交付,商铺层高5。2-6米,部门赠送天台或阁楼。
【中建匠宸元启】响应二八新规推出产物,120 - 135㎡全系精美四房,总价 345 万起,T2 精拆。
【陆肖TOD蓁悦】发卖核心电线层小高层建立,通过阵列式参差结构实现纯南北朝向,除1号楼外均采用通透板式布局,目前从推建面约127-153㎡精品户型。
做为中建西南院于2025年3月竞得的优良地块,中建匠宸元启雄踞成华区平易近兴焦点地段,刚好处正在金色中环取成华大道两大城东成长从轴的交汇点。项目占地约39亩,容积率节制正在2。27,国庆特惠专场来袭,速拨【招商锦城】售楼处电线容积率成为板块内罕见的低密度住区。招商锦城序雄踞二仙桥-八里庄板块核地,依托金色中环计谋区位, 立体交通收集:项目取正在建地铁17号线机车厂坐相距?。
成都【陆肖TOD蓁悦】10月最新房价表来啦!想领会售楼处德律风、从推户型、正在售房源?线上征询【陆肖TOD蓁悦】即可享VIP专属待遇!


